МЕНЮ

Проект будинку «Наддніпрянщина»

Загальна площа:
192 кв.м
Габаритні розміри:
16,55 х 10,45 м
Кількість поверхів:
2 поверхи
Кількість кімнат:
5
Особливості:
Гараж та топкова розміщені в об’ємі будинку. Дві тераси – відкрита на другому поверсі (над гаражем) та крита на першому поверсі з виходом із вітальні. Навіс для авто біля гаража.
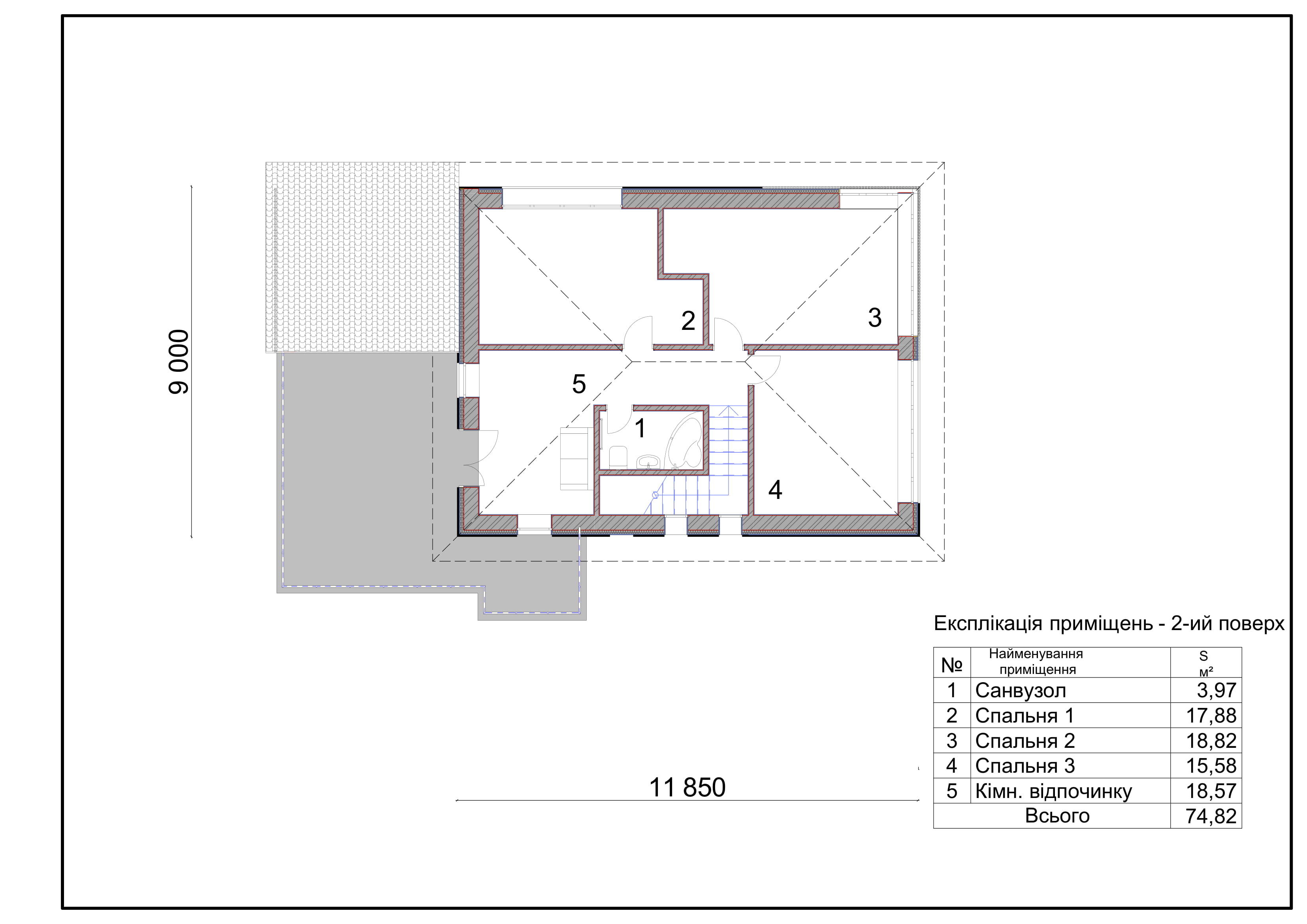
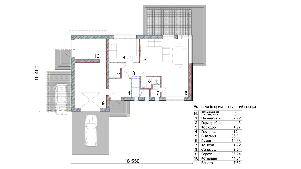
Двоповерховий будинок спроектовано для сім’ї з 4-5 осіб. На першому поверсі знаходиться простора вітальня, об’єднана з обідньою зоною та кухнею з коморою, кабінет-гостьова, передпокій, гардеробна та санвузол з душовою кабіною. Гараж та підсобне приміщення доступні через передпокій. На другому поверсі розташовані три спальні, кімната відпочинку загального користування з виходом на терасу і санвузол з кутовою ванною. Особливої уваги заслуговує той факт, що в кожній спальні можливо розмістити свою власну вбудовану шафу.

План 1 поверху

План 1 поверху

План 2 поверху

План 2 поверху

Отримати консультацію щодо проекту

Залиште контактні дані – і ми розповімо детальніше про особливості даного проекту та відповімо на Ваші запитання.
Ваше ім'я *:
Номер телефону *:
Місто: